M90螺栓拧紧用哪个液压扳手用型号?
2022-11-29 每一场竞技都是好运的开始
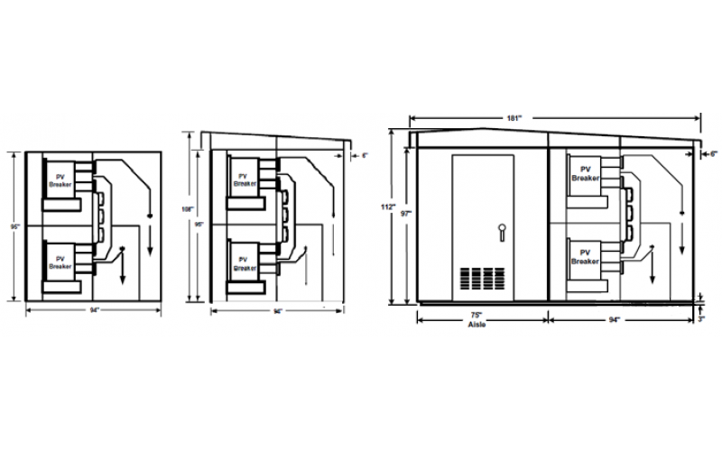
户外环网柜知识介绍分享
电感式接近开关的原理及使用分享
2022-11-28 每一场竞技都是好运的开始
IEEE标准真空断路器要求
IEEE标准中压开关柜要求
KWZK-GM系列安全光幕的应用简介
2022-11-25 每一场竞技都是好运的开始
水处理常用阀门知识介绍
大型视频监控网络系统如何规划ip地址?